Kernsanierte Altstadtwohnung mit Patio mitten im Herzen von Loule

Wohnung in der Zentralalgarve, Loule
Pdf Herunterladen

Kurzübersicht

Referenz:
STY-T3
Region:
Zentralalgarve
Bezirk:
Loule, Loule
Preis:
€ 460 000
Type:
Wohnung
Konstruktion:
109 m2
Grundstück:
30 m2
Schlafzimmer:
3
Badezimmer:
3
Schwimmbad:
Nein
Flughafen:
18 km
Golfplatz:
10 km
Strand:
12 km

Immobilien Beschreibung

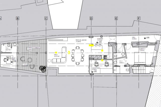
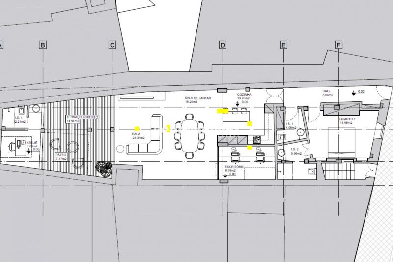
Diese außergewöhnliche Erdgeschosswohnung (T2 + 1) entsteht derzeit im historischen Zentrum der traditionsreichen Marktstadt Loulé. Nur wenige Schritte trennen Sie von der berühmten Markthalle, den verwinkelten Kopfsteinpflastergassen, charmanten Cafes und allen Einkaufsmöglichkeiten. Loule gilt als kulturelles Herz der Zentralalgarve lebendig, authentisch und ganzjährig attraktiv. Das Apartment wird aktuell kernsaniert und verbindet moderne Ausstattung mit dem Flair eines Altstadthauses. Geplant sind drei Schlafzimmer, jeweils mit eigenem Bad und hochwertigen Einbauschränken. Ein großzügiger Wohn- und Essbereich mit offener, zeitgemäßer Küche schafft ein lichtdurchflutetes Zentrum für geselliges Beisammensein. Ein privater Innenhof (Patio) erweitert den Wohnraum ins Freie und lädt zum Entspannen unter südlicher Sonne ein. Mit seiner privilegierten Lage und dem durchdachten Grundriss eignet sich dieses Objekt ideal als stilvolles Feriendomizil oder komfortabler Hauptwohnsitz. Die Fertigstellung ist in Kürze vorgesehen, sodass individuelle Wünsche noch berücksichtigt werden können. Energieausweis Klasse B-.

  Pdf Herunterladen

Mehr Informationen über diese Immobilie anfordern


Ähnliche Immobilien